Rénovation d’une maison en pisé
Le mot d’une architecte
Vous héritez d’une maison en pisé pleine de souvenirs et propice aux vacances ? Seulement voilà, on voit le jour à travers les murs par endroits et vous aimeriez à la fois lui conserver son caractère rustique et la rendre mieux isolée, plus logeable et plus lumineuse.
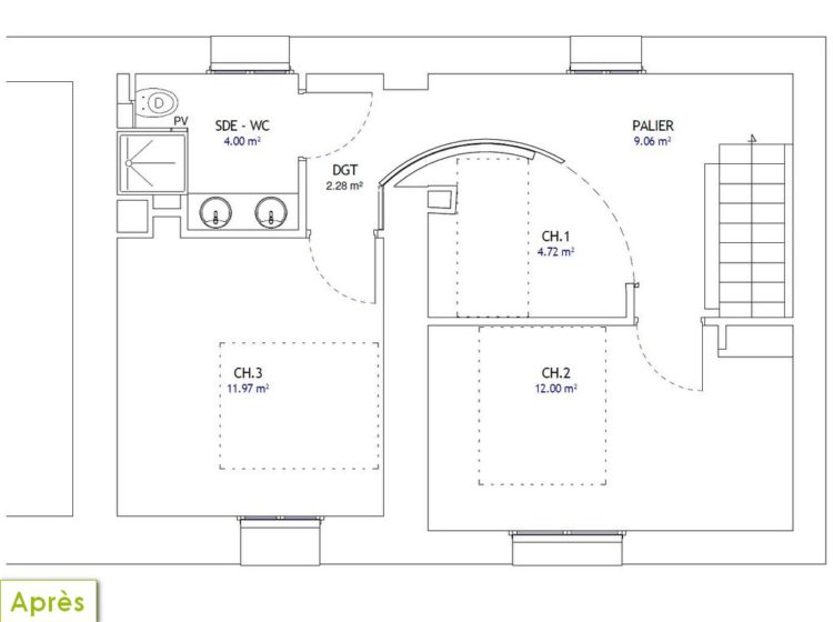
Un escalier en moins et une ouverture en plus dans le mur intérieur en pisé, quelques travaux de rénovation des planchers, plafonds et murs, l’isolation du comble, et une astuce pour loger deux couchages d’appoint dans une chambrette en bois qui s’ouvre et se ferme à l’envie sur un dégagement lumineux… et voilà, le tour est joué ! ![]()
Le Bouchage (38)
Juillet 2017
60 m² de Surface Travaux
51 615 € TTC – 860 € TTC/m² SH
Mission de base de maîtrise d’œuvre + EXE
Énergie / Matériaux / Environnement
Travaux Réalisés
- Reprise des fissures du mur en Pisé
- Suppression d’un escalier et mise aux normes de l’escalier conservé
- Création d’une ouverture dans le mur de refend à l’étage
- Réaménagement complet de l’étage
- Réaménagement de la cuisine au RDC
Les autres projets
Architecture & bioclimatisme
Combiner vue et soleil pour placer sa maison
Maison et annexe : repenser le lien pour créer l’unité
Projet de rénovation : jusqu'où investir ?
Aménagement de locaux professionnels
Extension d'une maison sur garage existant
Aménagements intérieurs d’une maison | création d’un escalier bois-métal, d'une mezzanine et d’une passerelle
Rénovation et transformation d’une maison à Bourgoin-Jallieu | Un nouvel espace de vie
Aménagement intérieur d’une maison à Bourgoin-Jallieu | Création d'une verrière en toiture
Maison bois Effinergie+ en Isère
Réaménagements intérieurs d’une maison en pisé en Isère
Rénovation thermique d’une maison en Isère et de sa terrasse bois-béton | Aménagement du jardin
Projet de rénovation d’un immeuble en centre ancien
Extension d’une maison paroissiale à Bourgoin
Mairie, bibliothèque, salle des habitants et relais d’assistantes maternelles
Création de terrasses pour maison ancienne en Isère
Création d'une extension de maison dans l'Isère
Réaménagement d’une Maison dans l'Isère
Travaux d’aménagement d’un local en pizzeria
Construction d'une maison bioclimatique et écologique
Extension de maison et réaménagement de l’existant
Maison écologique dans la pente
Surélévation partielle d’une maison
Réhabilitation d’un chalêt et aménagement paysager du jardin
Rénovation d’une ancienne ferme en pisé
Aménagement de 2 commerces
Rénovation d’une ancienne ferme en Gîte de 8 places
Extension d’une maison d’habitation
Aménagement du comble d’une maison d’habitation
Maison en ossature bois LOGIQUE ECO
Concours sur esquisse
Construction d un immeuble de 3 logements
Patrimoine
Maison et annexe : repenser le lien pour créer l’unité
Extension d'une maison sur garage existant
Aménagements intérieurs d’une maison | création d’un escalier bois-métal, d'une mezzanine et d’une passerelle
Aménagement intérieur d’une maison à Bourgoin-Jallieu | Création d'une verrière en toiture
Réaménagements intérieurs d’une maison en pisé en Isère
Albert RIBOLLET, un architecte dans la ville Parcours commentés dans la ville Exposition-dossier
Projet de rénovation d’un immeuble en centre ancien
Extension d’une maison paroissiale à Bourgoin
Mairie, bibliothèque, salle des habitants et relais d’assistantes maternelles
Rénovation d’une ancienne ferme en pisé
Aménagement de 2 commerces
Rénovation d’une ancienne ferme en Gîte de 8 places
Aménagement du comble d’une maison d’habitation
Rénovation énergétique
Rénovation et transformation d’une maison à Bourgoin-Jallieu | Un nouvel espace de vie
Réaménagements intérieurs d’une maison en pisé en Isère
Rénovation thermique d’une maison en Isère et de sa terrasse bois-béton | Aménagement du jardin
Projet de rénovation d’un immeuble en centre ancien
Extension d’une maison paroissiale à Bourgoin
Rénovation d’une ancienne ferme en pisé
Aménagement de 2 commerces